一種齒條滾拋精整加工裝置說明如下,供參考了解。
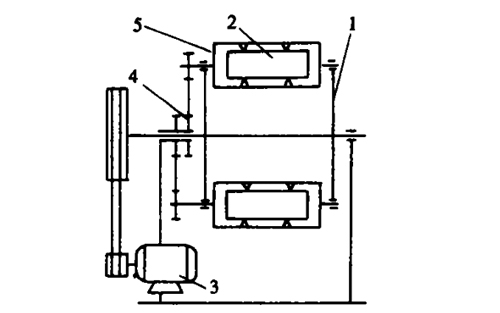
加工時,滾筒2被固定于筒座5內,筒座均勻地連接在圓盤支架1上。筒座的個數可根據加工孺要,設計為2、3、4、5、6等,并保證整個機構在工作狀態達到動平衡。

電機3經帶輪傳動圓盤支架以一定的轉速和方向轉動,同時帶動筒座一起公轉。筒座中心軸上安有鏈輪或齒輪4,與空套在主軸上且固定于底座支架上的鏈輪或齒輪相嚙合,組成了一組行星式運動系統,因此滾簡繞、自己的軸心產生了自轉。
加工時,可根據齒條的材料和公轉半徑,調整公轉轉速,使磨粒的離心力對齒條表面所形成的正壓力達到最佳值,由此控制磨粒對齒條表面造成的凸凹不平的程度,同時保證整個機構的安全運作。
通過電機與帶輪間的變速機構或改變帶輪尺寸便可實現公轉轉速的調整。滾簡的自轉,直接影響到加工效率,滾簡的自轉轉速高,單位時間內磨粒對齒條表面的沖摘次數增多,對齒條表面凸起處材料的去除率增大,由此提高了滾拋加工的效率,因此,在相關條件允許的情況下,應盡采用高的自轉轉速。

齒條在滾筒內的排列如上圖所示,通過筒蓋被固定于筒壁內,與滾筒成為一體,滾拋磨粒和滾拋液自由存在于齒條和筒蓋所圍的空間內。筒內齒條個數的確定原則是使齒條在筒內排列形成一圓柱形,不得少于6個,以確保在滾拋過程中,磨粒對齒條表面的正壓力和沖撞力在各處均相等,由此降低齒條表面的粗糙度值,達到較理想的滾拋效果。